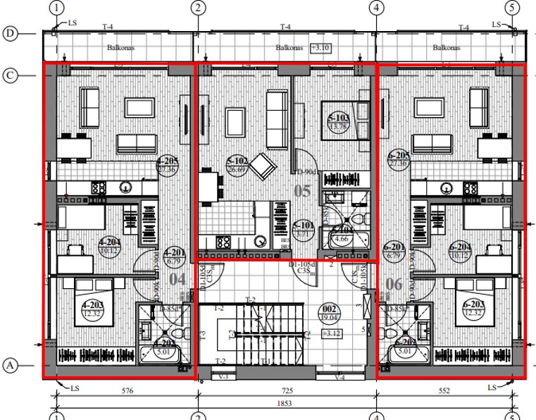
Rinktis būstąApie projektąPagrindinis 1 Namo 2 Aukštas BUTO NRKAMBARIŲ SKAIČIUSPLOTASBŪSENA04370.84 m²Laisvas05257.90 m²Užimtas06370.82 m²Laisvas 1 Aukštas 3 Aukštas